SOUČÁSTÍ MODULU NENÍ TLAČÍTKO, TO JE POTŘEBA DOOBJEDNAT!
Deante podomítkový rám pro závěsné WC mísy (CST_WC01)
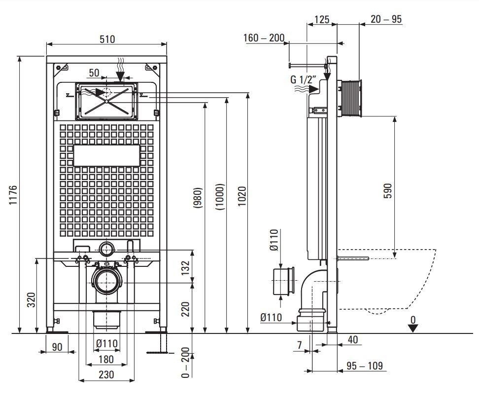
Podomítkový rám je určen k zavěšení WC mís. Je vybaven systémem dvojitého splachování a dodatečným zvukotěsným těsněním. Celek je stabilizován odolným ocelovým rámem.
Rám je určený pro sádrokartonovou montáž nebo před nosnou stěnu.
výška [mm]: 1176
šířka [mm]: 510
hloubka [mm]: 160
nastavení výšky stojanu [mm]: 200
výchozí nastavení pro nízké splachování (l): 3
výchozí nastavení…
















